Kuće na sprat

Harmony plus

Prostorije

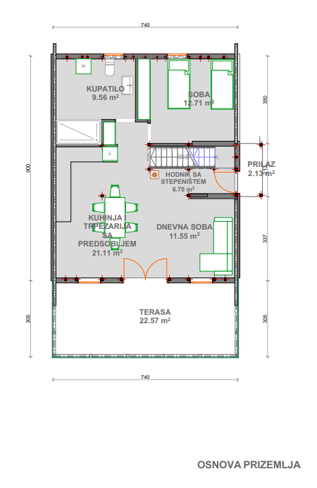
Prilaz
2.13 m2
Kuhinja sa trpezarijom i predsobljem
21.11 m2
Dnevna soba
11.55 m2
Hodnik sa stepeništem
6.7 m2
Soba
12.71 m2
Kupatilo
9.56 m2
Terasa
22.57 m2
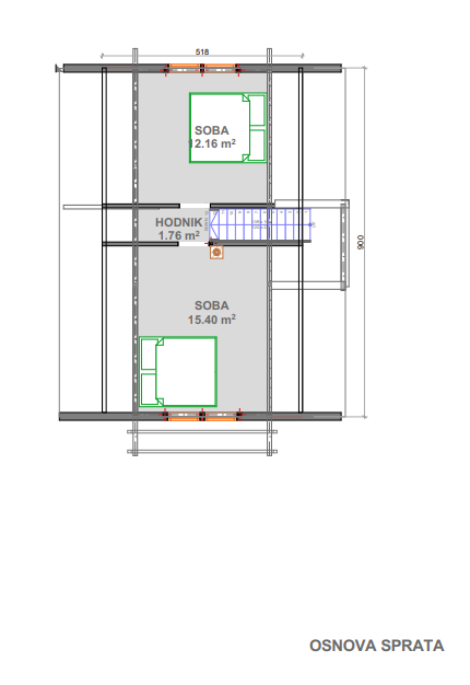
Soba
11.55 m2
Hodnik
1.76 m2
Soba
15.40 m2

Ukupno neto površine:

115.04 m2

Broj soba

4

Kvadratura

123.57 m2

Preuzmite

PDF

Osnove

Imate dodatnih pitanja?

Ukoliko želite da dobijete detaljnije informacije u vezi sa našim kućama ili imate dodatnih pitanja slobodno nas pozovite.

Pogledajte još

Kategorija

Kuće na sprat

Harmony plus

Kategorija

Kuće na sprat

Family plus

Kategorija

A frame kuća

Golija

Kategorija

A frame kuća

A frame Ekonomik

Kategorija

A frame kuće

A frame kuća 2

Kategorija

A frame kuća

A frame kuća 1